Sabrina LASNIER Négociatrice
Télécharger la fiche

Maison 3 pièce(s) 2 chambre(s) 72.78 m²

Mézières-sur-Issoire (87330)
44 500 € Référence 1231

A propos de ce bien

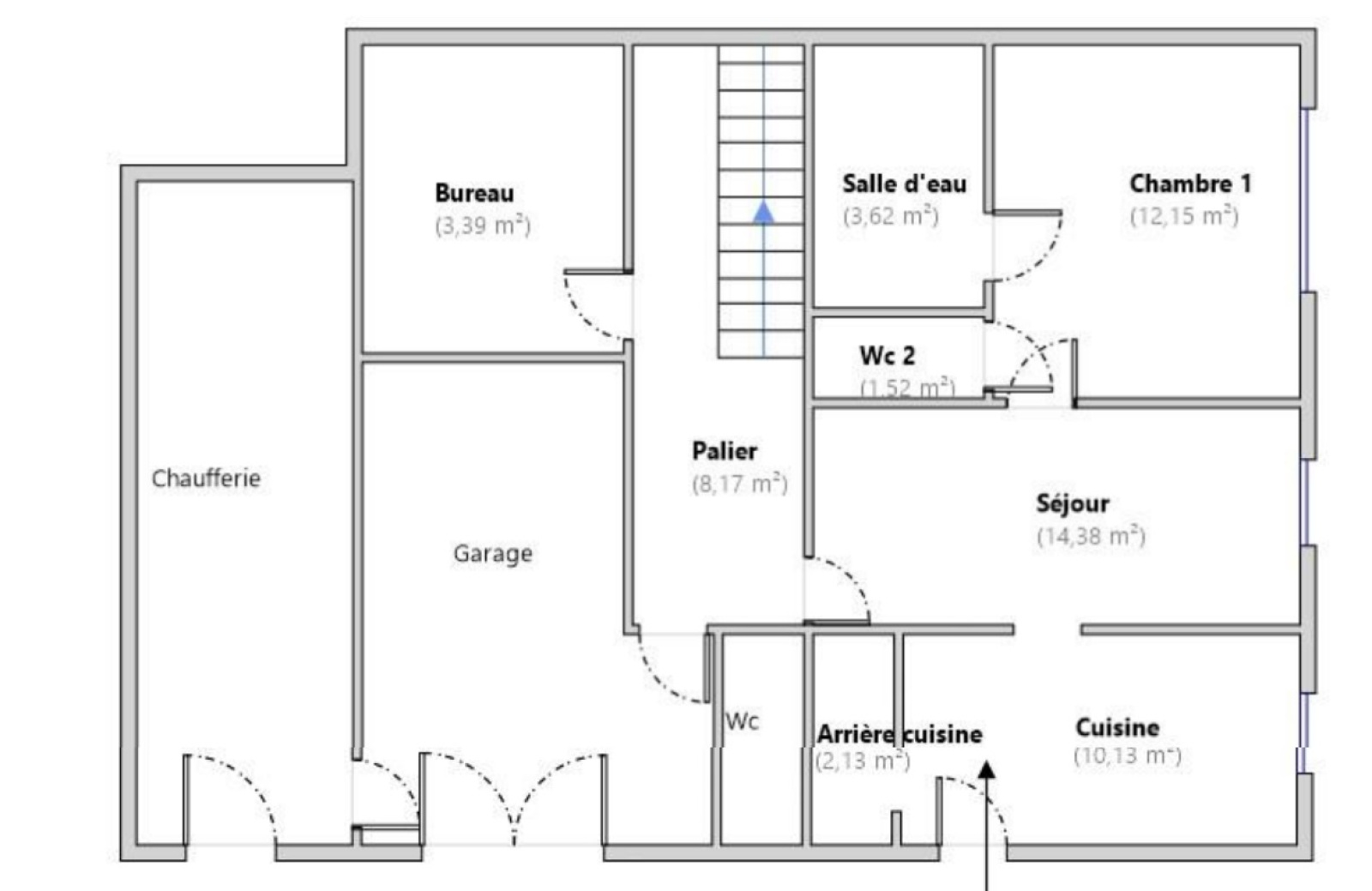
REF 1231 A Val d'Issoire sur la commune de Mézières sur Issoire, vous trouverez une maison d'habitation, actuellement louée, avec garage et terrain. Elle est composée d'une cuisine et arrière cuisine, un séjour, 2 chambres, une salle d'eau, un bureau, un WC. A l'extérieur, un garage, une chaufferie et un terrain non attenant. Locataires en place jusqu'en juin 2026. Pour plus de renseignements contacter l'agence Reactive Immo.

Retrouvez toutes nos annonces sur notre site www.reactive-immo.fr

Caractéristiques de ce bien

  • Surface 72,78 m²
  • terrain 1 387 m²
  • séjour 14,38 m²
  • 2 chambre(s)
  • 1 salle(s) d'eau
  • construit en 1948
  • cuisine américaine
  • Chauffage central : chaudière (fioul)
  • 1 garage(s)
  • exposition Nord-Ouest
  • 1 côté(s) mitoyen(s)
  • 1 niveau(x)
  • terrasse

Diagnostics énergétiques

DPE
GES

Logement à consommation énergétique excessive : classe G

Montant estimé des dépenses annuelles d'énergie de ce logement pour un usage standard est compris entre 1 860 € et 2 560 € . 2021 étant l'année de référence des prix de l'énergie utilisés pour établir cette estimation.

Informations financières

Prix de vente honoraires TTC inclus 44 500 €
Prix de vente honoraires TTC exclus 40 000 €
Honoraires TTC à la charge acquéreur 11,25 %
Taxe foncière annuelle 297 €

Calcul des mensualités

* Champs obligatoires